
Discover a high-yield dual-occupancy investment in one of Queensland’s fastest-growing corridors. Positioned to benefit from major infrastructure investment and the lead-up to the Brisbane 2032 Olympics, this opportunity offers strong rental returns and long-term capital growth potential.
Investment Overview
A dual-income property designed for modern living and reliable performance:
Total Package Price: $1,132,000
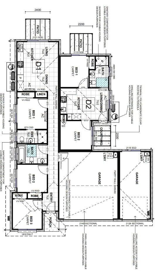
Type: Dual Occ – 3+2 / 2+1 / 2+1
House (201 m²) – $493,000
Land (480 m²) – $639,000
Estimated Rent: $1,325 per week (~$68,900 p.a.)
Unit 1: $750 p/w
Unit 2: $575 p/w
Vacancy Rate: ~1.3% (tight and in demand)
Estimated Land Registration: January 2026
Estimated Completion: Q3 2026
Contract Type: Double Contract (Land + Build)
Estate Highlights
A thoughtfully designed masterplanned community that blends lifestyle, quality, and long-term value:
Beautifully landscaped streetscapes and modern architecture enhance the neighbourhood’s appeal
Strong design standards and cohesive planning help preserve long-term property value
Family-oriented environment with parks, playgrounds, and outdoor spaces promoting active living
A well-balanced mix of residential areas, local amenities, and open green corridors
Modern homes built for comfort, energy efficiency, and low-maintenance living
Community spaces designed to foster connection, relaxation, and convenience
This estate has been crafted to deliver a balanced lifestyle — where modern living meets natural surroundings, ensuring both comfort and enduring investment value.
Connectivity & Accessibility
Within 5–8 minutes’ drive of major shopping centres, retail, and dining options
Schools and childcare are just 2–4 minutes’ drive away
Hospitals and medical centres within 15–20 minutes’ drive
Parks and recreation areas within walking distance
Major sporting and aquatic facilities just under 10 minutes’ drive
Nearest airport around 40 minutes’ drive
Central business district within 40 minutes’ reach via expressway access
Nearest beach about 25 minutes’ drive for easy escapes
Public transport options (bus stops and train station) within 3–5 minutes’ drive
This location offers a high level of connectivity, with walkable access to everyday needs and smooth links to city and coastal destinations. Landscaped paths and green corridors promote active living, while nearby public transport ensures easy commuting without sacrificing the relaxed lifestyle that defines this region.
Infrastructure & Development Growth
The corridor is experiencing major infrastructure and service investment that will support population and jobs growth:
Brisbane 2032 Olympics impact: Significant public and private investment ahead of 2032 is improving transport, amenities and services across nearby growth corridors — a strong catalyst for capital appreciation.
Multi-million dollar road and intersection upgrades scheduled for delivery between 2026–2028 to improve capacity and travel times.
Major hospital redevelopments and health expansions creating thousands of construction and long-term healthcare jobs.
Utilities expansion programs (water & wastewater) unlocking large new housing capacity and ensuring reliable services for future residents.
Government-backed housing activation initiatives to support over 10,000 new homes in the broader region over coming years.
Economic Drivers
Regional economic contribution: The broader corridor contributes heavily to the state economy and benefits from ongoing private and public investment.
Employment growth: Strong job creation forecast across healthcare, education, professional services, logistics and advanced manufacturing.<br>
Education and research: Local tertiary facilities and training hubs continue to attract staff and students, supporting rental demand.
Population growth: Consistent year-on-year increases driven by affordability, lifestyle and improved connectivity.
Lifestyle appeal: Easy access to beaches, parks and recreation under strong seasonal sunshine — attractive to families and tenants.
Investor Advantages
✅ Dual-Income Structure — multiple dwellings delivering stronger yield and tenant diversification
✅ Strong Rental Return — $1,325 per week average rent
✅ Low Vacancy — ~1.3% indicating tight supply and sustained tenant demand<br>
✅ Olympics & Infrastructure Tailwinds — major projects and funding supporting capital growth
✅ Convenient Access — short drives to schools, shopping, health and transport
✅ Secure Structure — double contract for land and build clarity
Final Word
This dual-occupancy package is a strategic investment designed for both immediate income and long-term capital growth. With robust rental fundamentals, low vacancy, and the infrastructure tailwinds leading into 2032, this opportunity is positioned to perform strongly through the next decade.


Our purpose is to guide you towards confident financial futures.