STRATEGY OF THE WEEK: Invest Once, Earn Twice — Emerging Growth Region Property
- Joean Soliman

- Dec 11, 2025
- 3 min read

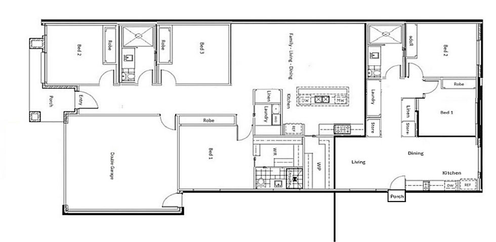
Dual Occupancy House & Land — Single Contract / SMSF Friendly
Looking to add a stable dual-income asset to your investment portfolio?
This dual occupancy home and land package offers dual-income potential, strong yield, and long-term demand — under a clean, SMSF-compatible single contract structure. With residential vacancy hovering around 1.3%, rental supply is tight and demand remains strong.
Property Snapshot
Type: Dual Occ – 3+2 / 2+1 / 2
Purchase Price: $914,990
House Size: 213 m² Land Size: 656 m²
Estimated Rent: $845 per week (combined)
Land Registration: Registered
Estimated Completion: Q3 2026
Contract Type: Single Contract — SMSF Suitable
Estate & Location Positioning
The property is located within a well-planned, established residential community offering:
Fully serviced land (utilities, infrastructure, communications)
Quiet neighbourhood character, with green space/reserve opposite the estate
Easy access to schools, medical services, retail, shopping, and recreation
A balanced mix of community services and lifestyle amenities
This setting supports long-term tenancy appeal from families, professionals, retirees, and essential-service workers.

Convenience & Accessibility (Approximate Distances & Drive Times)
Town centre / retail precinct: ~3.5 km — ~6 min
Primary school: ~1.8 km — ~3 min
Secondary school: ~3 km — ~4 min
Hospital / major health services: ~4.8 km — ~6 min
Medical / clinic services: ~3.5 km — ~6 min
Retail & shopping hub: roughly ~3–7 min drive
Local recreation & leisure areas:
- Coastal reserve / local reserve: ~10.2 km — ~6–22 min
- Beach / surf/coast access: ~10.9–15.2 km — ~15–22 min
Regional capital (major city) access: ~133 km — ~1 hr 55 min
Major airport access: ~157 km — ~2 hr 14 min
Public transport links: local bus routes and regional transit services within short reach
These access levels combine everyday convenience, access to essential services, and lifestyle amenities — making the property attractive to a broad tenant profile.
Regional Growth Fundamentals
The broader region enjoys several structural advantages that support strong demand for quality housing:
Steady population growth, driven by people relocating for lifestyle, affordability and services.
Diverse local economy, including healthcare, education, retail & services, construction, hospitality, tourism and light industry — offering a broad employment base and rental demand stability.
Tight rental vacancy levels (approx. 1.3%), creating competition for well-designed, modern housing stock.
Lifestyle appeal and amenity access, appealing to families, retirees, professionals and long-stay tenants — supporting long-term occupancy and rental yield.
These regional fundamentals help position this dual occupancy asset for stable returns and long-term value appreciation.
Location Growth & Infrastructure Momentum
Significant indicators of continued regional expansion and improved amenity support:
Upgraded local health services and expanded medical capacity — enhancing access to care, increasing service-based employment, and attracting residents requiring stable infrastructure and housing.
Ongoing enhancements to road networks, utilities, and community services — supporting growth of residential communities, improving connectivity and infrastructure readiness.
Expansion and strengthening of education, services and essential amenity frameworks — supporting families, professionals, and long-term residents seeking quality housing and stable service access.
Public transport and broader transit links maintained or under review — offering regional connectivity and accessibility for commuters, workers, and residents alike.
These factors combine to increase the attractiveness of dual-income properties in the area and support value growth over time.

Why This Dual Occupancy Asset Is a Smart Investment
Dual-rental income opportunity: Two income streams under one title reduces vacancy risk and maximises cash flow.
Simple single-contract structure: Ideal for SMSF investors seeking a clean, manageable investment.
Registered and serviced land: Minimises development risk and eases the path to completion.
Modern layout and appeal: Dual-key design attracts families, multi-generational tenants, professionals, or downsizers — broadening the tenant pool.
Strong regional demand fundamentals: Population growth, employment diversity, lifestyle amenities and tight vacancy support stable income and long-term capital growth.
Balanced mix of amenity, services and convenience: Schools, health services, retail, recreation, and transport access all within easy reach — boosting rental and resale appeal.
Final Note & Call to Action
This dual occupancy offering combines dual-income potential, structural simplicity, and strong long-term demand fundamentals — representing an excellent opportunity for investors seeking yield, stability, and growth.
To secure this property or request the full investment information pack, contact us now.


Floor plan, furniture and fixtures, measurements, and dimensions are approximate and are for illustrative purposes only.
Crafting Tomorrow’s Lifestyle Through Property Investment.
Do you have any questions? Call us at:
+61 407 465 850 | +61 482 080 189




Comments